Roll: Kontrollansvarig enligt PBL
Fastighet: Brandseglet 10, Flossagränd och Kvarnbacksvägen, Riksby, Bromma
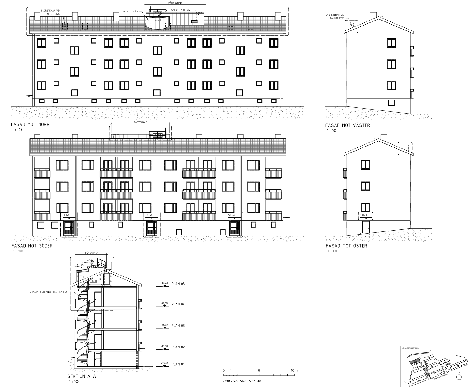
Projekt: Rivning, ombyggnad, yttre ändringar, nya fläktrum, tilläggsisolering av fasader, installation av solceller etc. i flerbostadshus om åtta huskroppar.
Uppdragsgivare: Familjebostäder AB

